BRF Furusand Åhus

28 lägenheter med uteplats i två väderstreck

Bild 1 rubrik
Lorem ipsum dolor sit amet consectetur adipiscing elit dolor
Klicka här
Bild 2 rubrik
Lorem ipsum dolor sit amet consectetur adipiscing elit dolor
Klicka här
Bild 3 rubrik
Lorem ipsum dolor sit amet consectetur adipiscing elit dolor
Klicka här
Föregående
Nästa

Lek, sport och fritid

EN AKTIVITETSBOD för olika sport- och fritidsaktiviteter finns på gården. Här kan föreningen vara med att påverka innehållet, som t.ex. vallabod på vintern och cykelverkstad på sommaren. Det skulle även kunna gå att lyfta vikter eller träna på stakmaskin om man önskar. Här finns också plats för skidförvaring och bytesgrejer. Utanför boden finns utegym, klättervägg och plats för avspolning av cykel mm.
EN LEKPLATS FINNS TILLGÄNGLIG på gården för barnens nöje och lärande. I anslutning finns även bänkar och bord för de vuxna att umgås kring samt hålla ett vakande öga på de små som leker.
FÖR DE ÄLDRE BARNEN OCH VUXNA finns ett mindre utomhusgym som ett led i uppmuntran till att gården ska vara en mötesplats för alla. Grönskan, aktivitetsskapande utmaningar samt en variation i markmaterial bidrar till en trygg och trafiksäker gårdsmiljö.

Vi bygger smala huskroppar i två våningar med fyra lägenheter per hus. Det blir totalt 28 lägenheter i sju hus. Med det spännande konceptet HyrBoköp och bostadsrätt. Försäljningsstart sommaren 2020 inflyttning våren 2022

Svenska Boställen bygger moderna hus med omsorg om detaljerna. Husen består av smala huskroppar i två våningar med fyra lägenheter per hus. Detta ger en mycket omtyckt och behaglig storlek på bebyggelsen. En skala där besökare och boende lätt känner sig trygga och hemmastadda med goda förutsättningar för en god grannsämja.
Orienteringen av husen på tomten tar hänsyn till platsens utblickar, solförhållanden och ger fri sikt över gården som är fylld med fina mötesplatser som lekplats, växthus och utegym.
Balkonger, takterrasser och markterrasser är väl tilltagna i två väderstreck för att kunna tillåta middagar med vänner på besök och samtidigt ge plats för krukor och solstolar med mera. Husens sadeltak för tankarna till äldre bebyggelse men är lika mycket ett uttryck för en funktionell och modern arkitektur. Färgskalan går i rött, vitt och mörkgrått vilket står fint mot naturens grönska.
Med husens sparsmakade formspråk ger vi extra omsorg vid detaljerna. Vi anser att vi kan uppnå höga estetiska värden med enkla volymer genom en väl genomarbetad detaljering av husens alla delar. Sådana detaljer är exempelvis träpanel i spontat utförande utan lock, eller att fönstren infästes långt ut i väggen med minimala plåtbeslag, vilket ger en slät fasad där hela glasytan reflekterar ljus och himmel. Sammantaget blir våra fyrbohus en modern arkitektur, som på ett respektfullt sätt infogas i sin omgivning.
Totalt kommer 28 lägenheter att byggas i 7 olika hus med bostadsstorlekarna 2:a 59 m2, 3:a 72 m2, 4:a 79 m2.  Det kommer att vara i upplåtelseformen bostadsrätt och HyrBoköp. HyrBoköp innebär att att du först flyttar in i en hyresrätt som du senare har möjlighet att köpa som bostadsrätt.
Försäljningsstart sker sommaren 2020 med inflyttning våren 2022

Stockfallet nära natur och service

Naturnära och barnvänlig stadsdel i nordöstra Karlstad inom cykelavstånd till centrum. Utöver den vackra tallskogen är det nära till det mesta, allt från service och shopping till aktiviteter och upplevelser. Till centrum är det inte mer än sex kilometer, en sträcka som tar tio minuter med bil. Det finns också goda bussförbindelser till centrala Karlstad, med en turtäthet på var 40:e minut under dagtid. Endast 200 meter från bostaden ligger hållplatsen Hällmarksgatan där linje 4 trafikerar.tockfallet

Stockfallet nära natur och service

Naturnära och barnvänlig stadsdel i nordöstra Karlstad inom cykelavstånd till centrum. Utöver den vackra tallskogen är det nära till det mesta, allt från service och shopping till aktiviteter och upplevelser. Till centrum är det inte mer än sex kilometer, en sträcka som tar tio minuter med bil. Det finns också goda bussförbindelser till centrala Karlstad, med en turtäthet på var 40:e minut under dagtid. Endast 200 meter från bostaden ligger hållplatsen Hällmarksgatan där linje 4 trafikerar.

Stockfallet nära natur och service

Handelsområdet Bergvik på tio minuter. För den som studerar eller arbetar inom akademien är detta rätt sida om stan. Till universitetet cyklar man nämligen på under tio minuter. Bebyggelsen på Stockfallet består idag till största del av villor och radhus och kommer att kompletteras med mindre flerfamiljshus. De första husen på Norra Stockfallet började uppföras 2014 och sedan dess har flera byggnader tagit form. Såväl förskola som grundskola finns inom en radie av en kilometer. Det finns dessutom flera lekplatser i närområdet.

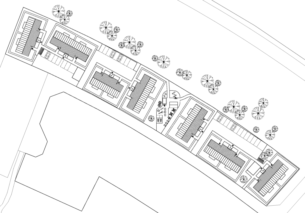
Klicka på lägenheten du vill veta mer om

Situationsplan-fîr-fÑrglÑggning-scaled.jpg

2 RUM OCH KÖK 58m2 med uteplats, pris 1 495 000 kr Bokad

2 RUM OCH KÖK 58m2 med uteplats, pris 1 495 000 kr BOKAD

2 RUM OCH KÖK 58m2 med uteplats, pris 1 495 000 kr BOKAD

2 RUM OCH KÖK 58m2 med uteplats, pris 1 495 000 kr Bokad

2 RUM OCH KÖK 58m2 med balkong, pris 1 350 000 kr

2 RUM OCH KÖK 58m2 med balkong, pris 1 450 000 kr

2 RUM OCH KÖK 58m2 med balkong, pris 1 450 000 kr

2 RUM OCH KÖK 58m2 med balkong, pris 1 450 000 kr

3 RUM OCH KÖK 72m2 med balkong, pris 1 650 000

3 RUM OCH KÖK 72m2 med balkong, pris 1 795 000 Bokad

3 RUM OCH KÖK 72m2 med balkong, pris 1 795 000 Bokad

3 RUM OCH KÖK 72m2 med balkong, pris 1 795 000

3 RUM OCH KÖK 72m2 med balkong, pris 1 795 000

3 RUM OCH KÖK 72m2 med balkong, pris 1 695 000

3 RUM OCH KÖK 72m2 med balkong, pris 1 795 000

3 RUM OCH KÖK 72m2 med balkong, pris 1 795 000

3 RUM OCH KÖK 72m2 med balkong, pris 1 695 000

3 RUM OCH KÖK 72m2 med uteplats, pris 1 895 000 BOKAD

3 RUM OCH KÖK 72m2 med uteplats, pris 1 595 000 BOKAD

3 RUM OCH KÖK 72m2 med uteplats, pris 1 795 000 Bokad

3 RUM OCH KÖK 72m2 med uteplats, pris 1 895 000 BOKAD

3 RUM OCH KÖK 72m2 med uteplats, pris 1 895 000 BOKAD

3 RUM OCH KÖK 72m2 med uteplats, pris 1 895 000 BOKAD

3 RUM OCH KÖK 72m2 med uteplats, pris 1 795 000 Bokad

3 RUM OCH KÖK 72m2 med uteplats, pris 1 795 000 Bokad

3 RUM OCH KÖK 72m2 med uteplats, pris 1 795 000 BOKAD

4 RUM OCH KÖK 78m2 med balkong, pris 1 950 000

4 RUM OCH KÖK 78m2 med balkong, pris 1 850 000

4 RUM OCH KÖK 78m2 med balkong, pris 1 950 000

4 RUM OCH KÖK 78m2 med uteplats, pris 1 850 000 Bokad

4 RUM OCH KÖK 78m2 med uteplats, pris 1 995 000 BOKAD

4 RUM OCH KÖK 78m2 med uteplats, pris 1 995 000 BOKAD

2 rum och kök med uteplats (58kvm)

Från 1 395 000:-

VÅRA TVÅOR OM 58 välplanerade kvadratmeter har lika generösa badrum som de större lägenheterna. Köket är avdelbart från vardagsrummet och sovrummets garderober kompletteras med en klädkammare i hallen.

3 rum och kök med uteplats (72kvm)

Från 1 595 000:-

VÅR TREA ÄR bara något mindre än vår fyra och har rymliga och generösa rum. Kök och badrum har samma kvaliteter i form av utrymme och utrustning som i den större lägenheten. Varje lägenhet har uteplats eller balkong på ena sidan och en privat entrézon på andra sidan. Det innebär att alla lägenheter har uteplats i solläge.

4 rum och kök med uteplats (78kvm)

Från 1 850 000:-

VÅR FYRA HAR ALLT man kan önska sig av ett effektivt boende. Som i alla våra lägenheter är köket rymligt och välutrustat och går att få antingen avskilt eller i öppet samband med vardagsrummet. Det finns gott om förvaring i lägenheten som förstås kompletteras med ett förråd i anslutning till bostaden.

2 rum och kök med balkong (58kvm)

Från 1 350 000:-

VÅRA TVÅOR OM 58 välplanerade kvadratmeter har lika generösa badrum som de större lägenheterna. Köket är avdelbart från vardagsrummet och sovrummets garderober kompletteras med en klädkammare i hallen.

2 rum och kök med uteplats (58kvm)

Från 1 395 000:-

VÅRA TVÅOR OM 58 välplanerade kvadratmeter har lika generösa badrum som de större lägenheterna. Köket är avdelbart från vardagsrummet och sovrummets garderober kompletteras med en klädkammare i hallen.